中古一戸建て 岩出市野上野
所在地
岩出市野上野
1,650万円
27.48坪
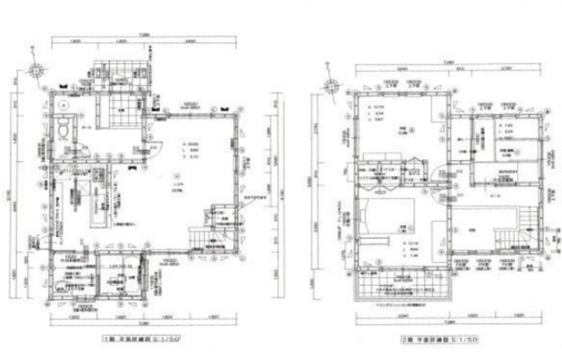
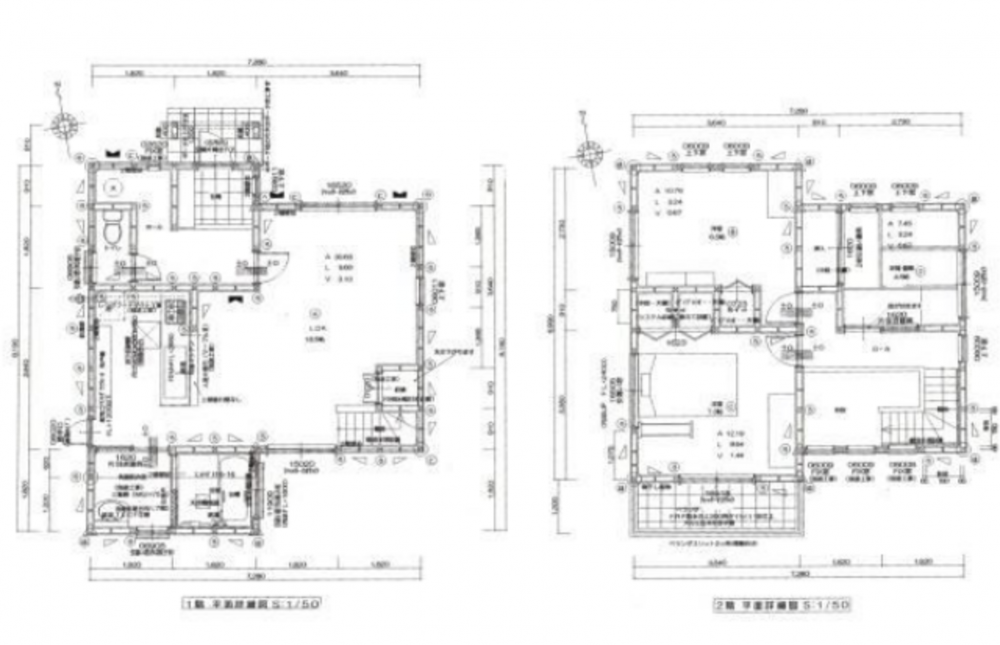
3LDK
☆岩出中央ショッピングセンター徒歩3分!
☆南側に庭があるので明るいリビング♪
☆安心のオール電化住宅!駐車2台可!
月々の
支払例
支払例
万円
年
%
円
※紀陽銀行/借入金1,650万円、返済期間35年、金利0.395%(変動)の場合
※審査により金利は変わる可能性があります。
物件概要
- 交通
-
JR和歌山線 岩出駅 まで 徒歩38分
- 土地面積
- 公簿 130.08㎡ (39.34坪)
- 建物面積
- 90.85㎡ (27.48坪)
- 築年数
-
2006年
(平成18)
8月
築19年 - 建ぺい率
- 70%
- 容積率
- 200%
- 土地権利
- 所有権
- 構造および階数
- 木造 地上2階建
- 小学校区
- 中央 (1182m)
- 中学校区
- 岩出第二 (552m)
- 私道負担
- なし
- 地目
- 宅地
- 現況
- 居住中
- 引渡時期
- 相談
- 駐車場
- 有 2台
- 上水道
- 公共
- 下水道
- ガス
- 都市ガス
- 都市計画
- 非線引区域
- 用途地域
- 指定無
- 設備・条件
- システムキッチン、IHクッキングヒーター、オール電化、駐車場2台分、床下収納
- 備考
- 取引態様
- 仲介



