新築一戸建て 堺市中区東山3号棟
所在地
堺市中区東山3号棟
3,598万円
29.56坪
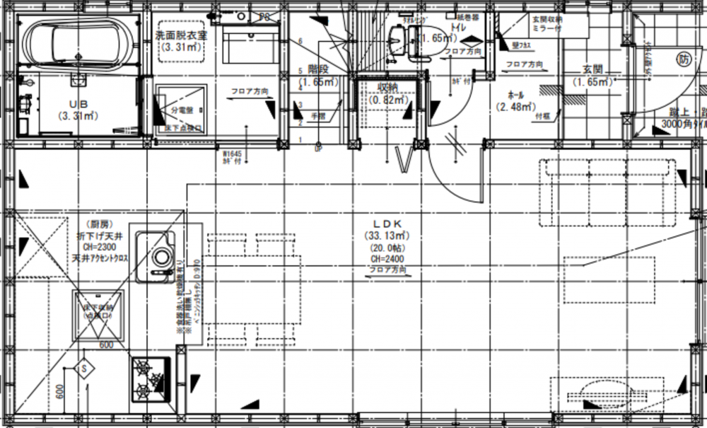
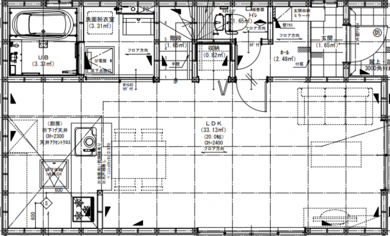
4LDK
・省エネ基準適合認定住宅!
・土地面積約32.8坪!
・木造2階建ゆとりの4LDK☆
月々の
支払例
支払例
万円
年
%
円
※紀陽銀行/借入金3,598万円、返済期間35年、金利0.395%(変動)の場合
※審査により金利は変わる可能性があります。
物件概要
- 交通
-
南海泉北線 深井駅 まで 徒歩23分
- 土地面積
- 公簿 108.63㎡ (32.86坪)
- 建物面積
- 97.72㎡ (29.56坪)
- 築年数
- 2026年 (令和8) 2月
- 建ぺい率
- 60%
- 容積率
- 160%
- 土地権利
- 所有権
- 構造および階数
- 木造 地上2階建
- 小学校区
- 久世 (1400m)
- 中学校区
- 平井 (1500m)
- 私道負担
- なし
- 地目
- 宅地
- 現況
- 未完成
- 引渡時期
- 予定 令和 8年 2月 中旬
- 駐車場
- 上水道
- 公共
- 下水道
- 公共下水
- ガス
- 都市ガス
- 都市計画
- 市街化区域
- 用途地域
- 1種住居
- 建築確認番号
- KS125-0420-57255
- 設備・条件
- 側溝、システムキッチン、カウンターキッチン、食器洗浄乾燥機、シャンプードレッサー、洗浄便座、浴室乾燥機、追い焚き、ウォークインクローゼット、モニタ付インターホン、駐車場2台分、床下収納、トイレ2箇所
- 備考
- 準防火
- 取引態様
- 仲介



