いちや
泉州エリア・堺市エリア・南河内エリア・紀北エリアの不動産情報 いちや
ご紹介可能物件
7481件公開中
2025.10.17更新

収益物件/マンション 堺市中区八田北町

New
1/9

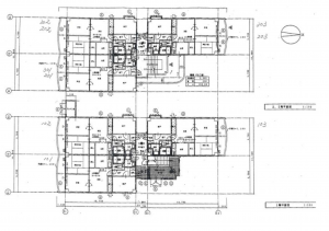
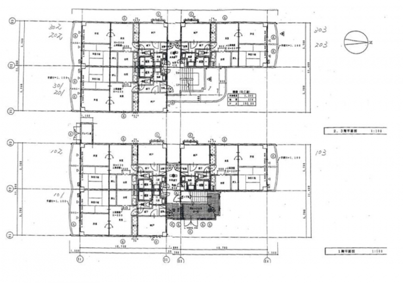
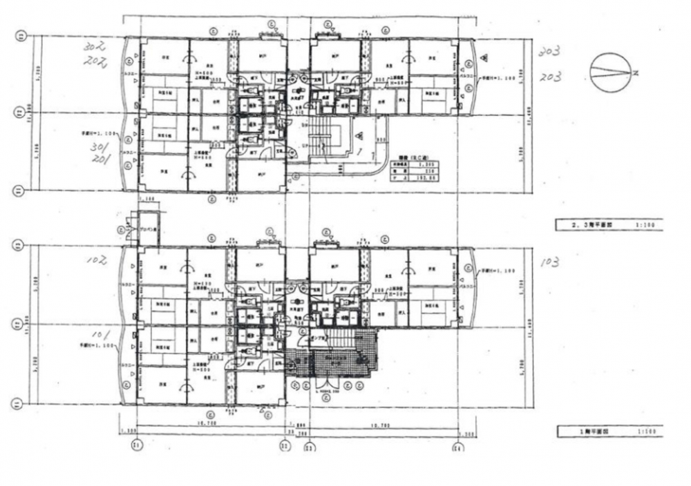
【間取り】

  • リフォーム済
  • 所在地
    堺市中区八田北町
    12,500万円
    2SLDK

    ☆オーナーチェンジ物件!
    現況利回り:6.32%
    現況 月額賃料等:659,000円
    現況 年額賃料等:7,908,000円
    2021年7月に、外壁塗装工事・シール工事・防水工事・屋上屋根補修工事

    月々の
    支払例
    万円
    %

    ※紀陽銀行/借入金12,500万円、返済期間35年、金利0.395%(変動)の場合

    ※審査により金利は変わる可能性があります。

    物件概要

    交通

    南海泉北線 深井駅 まで 徒歩15分

    土地面積
    公簿 556.74㎡ (168.41坪)
    建物面積
    577.52㎡ (174.69坪)
    所在階/階数
    築年数
    2000年 (平成12) 9月
    築25年
    建ぺい率
    60%
    容積率
    160%
    土地権利
    所有権
    構造および階数
    RC(鉄筋コンクリート) 造 地上3階建
    総戸数
    小学校区
    中学校区
    私道負担
    地目
    宅地
    現況
    賃貸中
    引渡時期
    相談
    駐車場
    上水道
    公共
    下水道
    公共下水
    ガス
    都市ガス
    都市計画
    市街化区域
    用途地域
    1種住居
    設備・条件
    備考
    2025年10月14日~、土地80.99㎡を加算
    取引態様
    仲介
    周辺地図を確認する

    (弊社管理番号: 81756)

    【更新日】2025年10月16日

    【次回更新日】2025年11月16日

    その他周辺物件

    会社紹介 Company

    泉州エリア・堺市エリア・南河内エリア・紀北エリアの不動産・住宅専門店

    HPを見たと言ってお気軽にお問い合わせください

    無料相談・お電話窓口

    0120-18-5018
    営業時間:10:00〜19:00 定休日:毎週火曜日・水曜日