中古一戸建て 堺市中区堀上町
所在地
堺市中区堀上町
1,050万円
27.07坪
5DK
☆バス停「八田寺公園前」まで徒歩3分!
☆角地ですので建替用地としても適しています!
月々の
支払例
支払例
万円
年
%
円
※紀陽銀行/借入金1,050万円、返済期間35年、金利0.395%(変動)の場合
※審査により金利は変わる可能性があります。
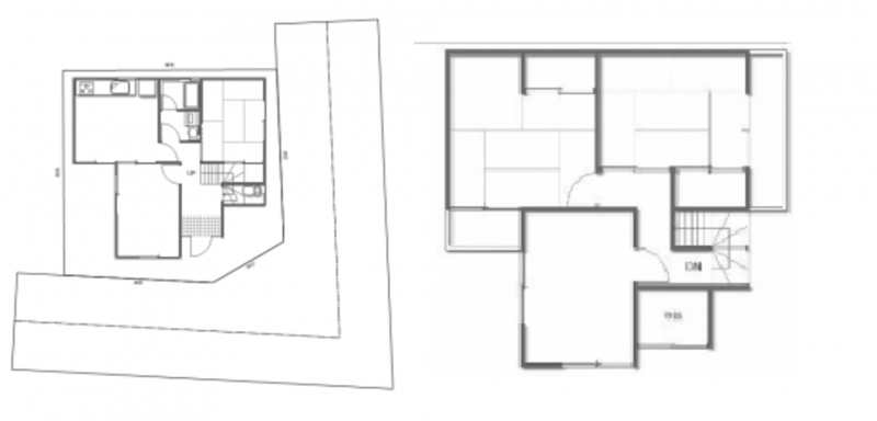
物件概要
- 交通
-
南海泉北線 深井駅 バス26分乗車 バス停堀上 まで 徒歩9分
南海高野線 堺東駅 バス34分乗車 バス停八田寺公園前 まで 徒歩3分
- 土地面積
- 80.06㎡ (24.21坪)
- 建物面積
- 89.50㎡ (27.07坪)
- 築年数
-
1982年
(昭和57)
2月
築44年 - 建ぺい率
- 70%
- 容積率
- 200%
- 土地権利
- 所有権
- 構造および階数
- 木造 地上2階建
- 小学校区
- 八田荘 (550m)
- 中学校区
- 八田荘 (650m)
- 私道負担
- 地目
- 宅地
- 現況
- 空家
- 引渡時期
- 相談
- 駐車場
- 有
- 上水道
- 公共
- 下水道
- 公共下水
- ガス
- 都市ガス
- 都市計画
- 市街化区域
- 用途地域
- 1種中高層
- 設備・条件
- 備考
- 取引態様
- 仲介



