中古一戸建て 堺市美原区南余部
所在地
堺市美原区南余部
1,580万円
29.40坪
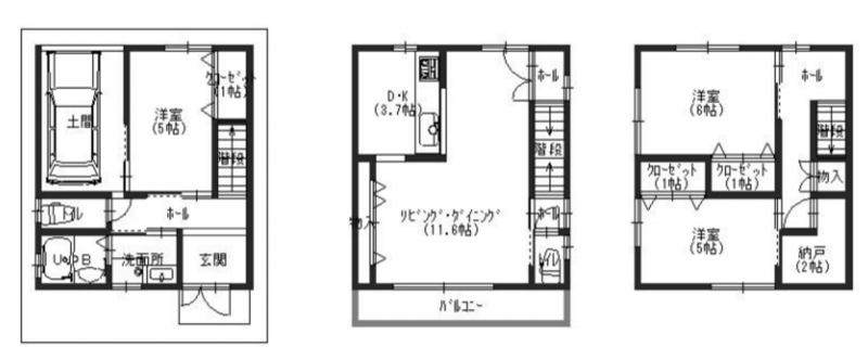
3LDK
3LDKの3階建て!
南海高野線「北野田駅」まで徒歩約20分
「サンディ堺美原店」や「スギ薬局」が近くにあり便利です♪
ハウスクリーニング済み☆
月々の
支払例
支払例
万円
年
%
円
※紀陽銀行/借入金1,580万円、返済期間35年、金利0.395%(変動)の場合
※審査により金利は変わる可能性があります。
物件概要
- 交通
-
南海高野線 北野田駅 まで 徒歩20分
- 土地面積
- 54.36㎡ (16.44坪)
- 建物面積
- 97.20㎡ (29.40坪)
- 築年数
-
2008年
(平成20)
9月
築17年 - 建ぺい率
- 60%
- 容積率
- 200%
- 土地権利
- 所有権
- 構造および階数
- 木造 地上3階建
- 小学校区
- 黒山 (1200m)
- 中学校区
- 美原西 (1200m)
- 私道負担
- 地目
- 宅地
- 現況
- 空家
- 引渡時期
- 相談
- 駐車場
- 有
- 上水道
- 下水道
- ガス
- 都市計画
- 市街化区域
- 用途地域
- 1種中高層
- 設備・条件
- トイレ2箇所
- 備考
- 取引態様
- 仲介



