収益物件/その他 岩出市北大池
所在地
岩出市北大池
2,000万円
☆バス停「北大池」まで徒歩2分!
☆敷地内駐車場有(9台分)
月々の
支払例
支払例
万円
年
%
円
※紀陽銀行/借入金2,000万円、返済期間35年、金利0.395%(変動)の場合
※審査により金利は変わる可能性があります。
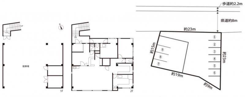
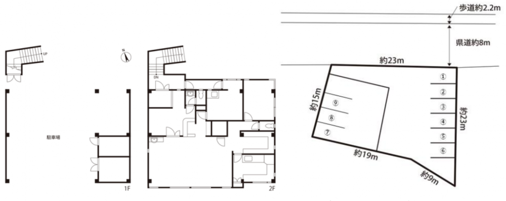
物件概要
- 交通
-
バス停北大池 まで 徒歩2分
- 土地面積
- 441.76㎡ (133.63坪)
- 建物面積
- 117.50㎡ (35.54坪)
- 所在階/階数
- 築年数
-
1984年
(昭和59)
10月
築41年 - 建ぺい率
- 70%
- 容積率
- 200%
- 土地権利
- 所有権
- 構造および階数
- 鉄骨造 地上2階建
- 総戸数
- 小学校区
- 上岩出
- 中学校区
- 岩出第二
- 私道負担
- 地目
- 宅地
- 現況
- 空家
- 引渡時期
- 相談
- 駐車場
- 有 9台
- 上水道
- 下水道
- ガス
- 都市計画
- 非線引区域
- 用途地域
- 指定無
- 設備・条件
- 駐車場2台分、駐車場3台分
- 備考
- 令和7年度固定資産評価額 土地11,111,147円、建物2,369,489円 税額計162,352円
- 取引態様
- 仲介



