土地 岩出市北大池
所在地
岩出市北大池
2,000万円
133.63坪
☆バス停「北大池」まで徒歩2分!
☆建築条件ございません!お好きなプランでご建築いただけます♪
月々の
支払例
支払例
万円
年
%
円
※紀陽銀行/借入金2,000万円、返済期間35年、金利0.395%(変動)の場合
※審査により金利は変わる可能性があります。
物件概要
- 交通
-
バス停北大池 まで 徒歩2分
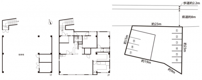
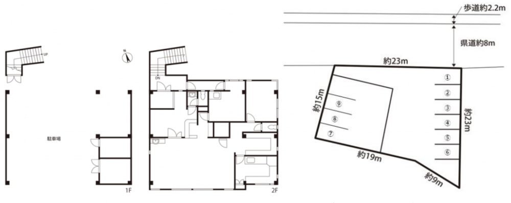
- 土地面積
- 441.76㎡ (133.63坪)
- 建ぺい率
- 70%
- 容積率
- 200%
- 土地権利
- 所有権
- セットバック
- 無し
- 小学校区
- 上岩出
- 中学校区
- 岩出第二
- 私道負担
- 建築条件
- なし
- 地目
- 宅地
- 現況
- 上物有
- 引渡時期
- 相談
- 上水道
- 下水道
- ガス
- 都市計画
- 非線引区域
- 用途地域
- 指定無
- 設備・条件
- 備考
- 令和7年度固定資産評価額 土地11,111,147円、建物2,369,489円 税額計162,352円
- 取引態様
- 仲介



