中古一戸建て 泉南郡岬町深日
所在地
泉南郡岬町深日
198万円
35.35坪
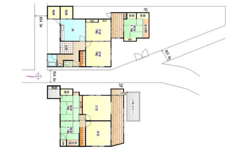
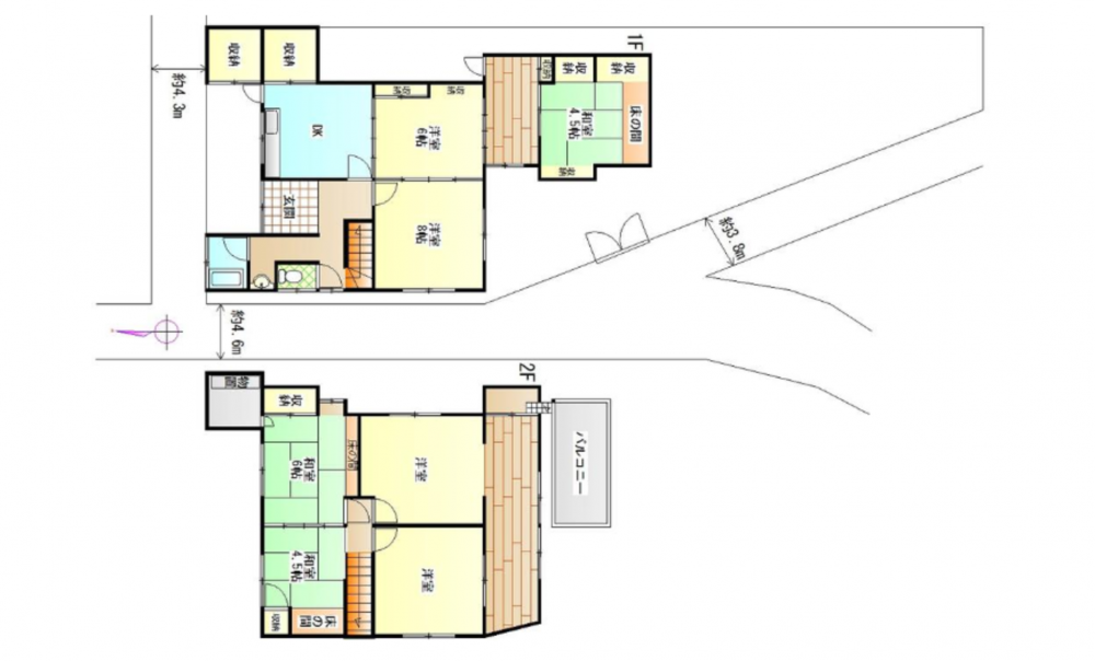
7DK
お部屋たっぷり7DKの間取り♪
南海多奈川線「深日港」駅まで徒歩4分!
月々の
支払例
支払例
万円
年
%
円
※紀陽銀行/借入金198万円、返済期間35年、金利0.395%(変動)の場合
※審査により金利は変わる可能性があります。
物件概要
- 交通
-
南海多奈川線 深日港駅 まで 徒歩4分
南海多奈川線 多奈川駅 まで 徒歩9分
- 土地面積
- 187.00㎡ (56.56坪)
- 建物面積
- 116.88㎡ (35.35坪)
- 築年数
-
1973年
(昭和48)
8月
築52年 - 建ぺい率
- 60%
- 容積率
- 200%
- 土地権利
- 所有権
- 構造および階数
- 木造 地上2階建
- 小学校区
- 深日 (1200m)
- 中学校区
- 岬 (1700m)
- 私道負担
- 地目
- 宅地
- 現況
- 空家
- 引渡時期
- 相談
- 駐車場
- 無
- 上水道
- 下水道
- 公共下水
- ガス
- プロパンガス
- 都市計画
- 市街化区域
- 用途地域
- 2種中高層
- 設備・条件
- 側溝
- 備考
- 取引態様
- 仲介



