中古一戸建て 堺市東区北野田
所在地
堺市東区北野田
3,080万円
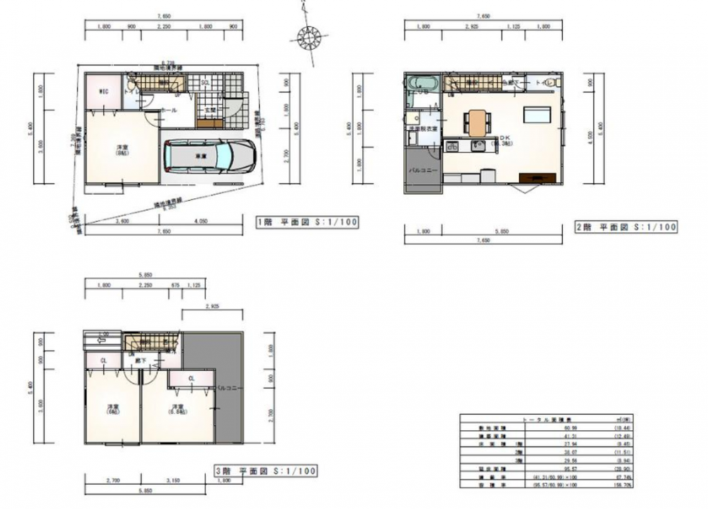
32.21坪
3LDK
☆南海高野線北野田駅まで徒歩10分!
☆忙しい朝や遅い帰宅時に嬉しい「駅近」!
☆3LDK
月々の
支払例
支払例
万円
年
%
円
※紀陽銀行/借入金3,080万円、返済期間35年、金利0.395%(変動)の場合
※審査により金利は変わる可能性があります。
物件概要
- 交通
-
南海高野線 北野田駅 まで 徒歩10分
- 土地面積
- 公簿 60.99㎡ (18.44坪)
- 建物面積
- 106.51㎡ (32.21坪)
- 築年数
- 2025年 (令和7) 11月
- 建ぺい率
- 60%
- 容積率
- 200%
- 土地権利
- 所有権
- 構造および階数
- 木造 地上3階建
- 小学校区
- 登美丘東 (800m)
- 中学校区
- 野田 (1200m)
- 私道負担
- なし
- 地目
- 宅地
- 現況
- 空家
- 引渡時期
- 即時
- 駐車場
- 有 1台
- 上水道
- 公共
- 下水道
- ガス
- 都市ガス
- 都市計画
- 市街化区域
- 用途地域
- 1種中高層
- 設備・条件
- 側溝、食器洗浄乾燥機、シャンプードレッサー、浴室乾燥機、追い焚き、複層ガラス、モニタ付インターホン、床下収納、トイレ2箇所
- 備考
- 取引態様
- 仲介



