中古一戸建て 富田林市藤沢台3丁目
所在地
富田林市藤沢台3丁目
5,198万円
23.73坪
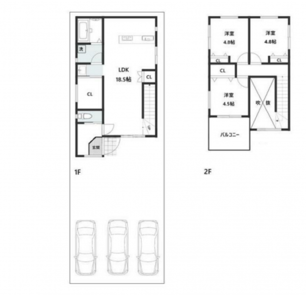
3LDK
〇おしゃれな築浅注⽂住宅!
〇駐⾞スペース3台分!
〇南⻄向きにつき陽当たり良好♪
月々の
支払例
支払例
万円
年
%
円
※紀陽銀行/借入金5,198万円、返済期間35年、金利0.395%(変動)の場合
※審査により金利は変わる可能性があります。
物件概要
- 交通
-
南海高野線 金剛駅 まで 徒歩24分
南海高野線 大阪狭山市駅 まで 徒歩23分
近鉄長野線 川西駅 まで 徒歩30分
- 土地面積
- 公簿 158.34㎡ (47.89坪)
- 建物面積
- 78.46㎡ (23.73坪)
- 築年数
- 2025年 (令和7) 6月
- 建ぺい率
- 50%
- 容積率
- 100%
- 土地権利
- 所有権
- 構造および階数
- 木造 地上2階建
- 小学校区
- 藤沢台 (686m)
- 中学校区
- 葛城 (687m)
- 私道負担
- 地目
- 宅地
- 現況
- 居住中
- 引渡時期
- 相談
- 駐車場
- 有 3台
- 上水道
- 公共
- 下水道
- 公共下水
- ガス
- 都市ガス
- 都市計画
- 市街化区域
- 用途地域
- 1種低層
- 設備・条件
- システムキッチン、カウンターキッチン、浴室乾燥機、モニタ付インターホン、洗浄便座、追い焚き、駐車場2台分、駐車場3台分
- 備考
- 取引態様
- 仲介



