新築一戸建て 堺市東区野尻町
所在地
堺市東区野尻町
2,580万円
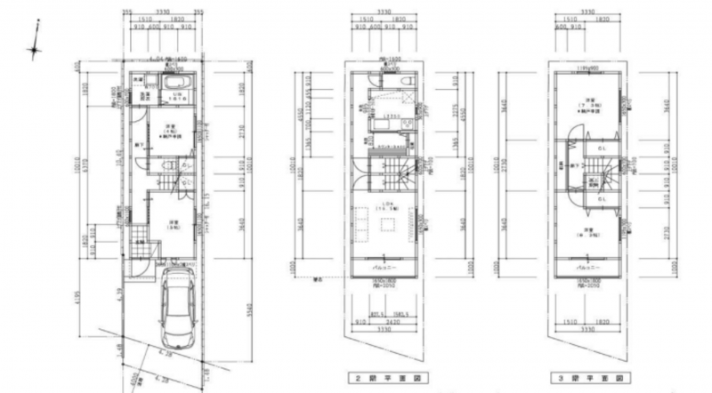
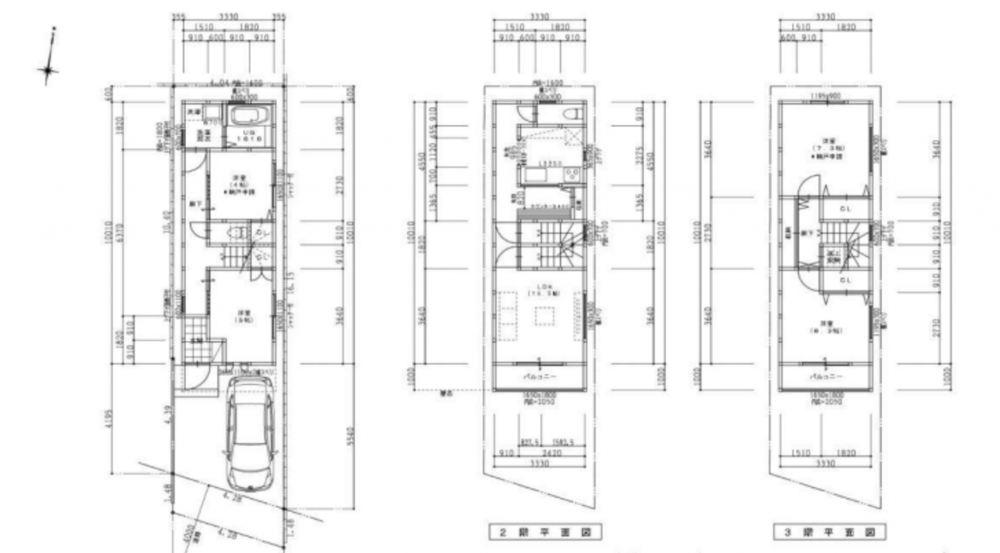
30.24坪
4LDK
☆南海高野線初芝駅まで徒歩12分!
☆使い勝手の良い3LDK!
月々の
支払例
支払例
万円
年
%
円
※紀陽銀行/借入金2,580万円、返済期間35年、金利0.395%(変動)の場合
※審査により金利は変わる可能性があります。
物件概要
- 交通
-
南海高野線 初芝駅 まで 徒歩12分
南海高野線 白鷺駅 まで 徒歩13分
- 土地面積
- 67.55㎡ (20.43坪)
- 建物面積
- 99.99㎡ (30.24坪)
- 築年数
- 2025年 (令和7) 8月
- 建ぺい率
- 60%
- 容積率
- 200%
- 土地権利
- 所有権
- 構造および階数
- 木造 地上3階建
- 小学校区
- 白鷺
- 中学校区
- 中百舌鳥
- 私道負担
- なし
- 地目
- 宅地
- 現況
- 空家
- 引渡時期
- 即時
- 駐車場
- 有 1台
- 上水道
- 下水道
- ガス
- 都市計画
- 市街化区域
- 用途地域
- 1種中高層
- 建築確認番号
- 第J24-01359号
- 設備・条件
- トイレ2箇所
- 備考
- 準防火地域
- 取引態様
- 仲介



