新築一戸建て 堺市中区深井中町
所在地
堺市中区深井中町
3,980万円
28.17坪
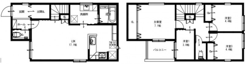
4LDK
・ご家族みんながくつろげる広々リビング
・キッチンには1.8mの収納システム、人口大理石のカウンター
・駐車2台可(車種による)
・天候を気にせず洗濯物を乾かせる衣類乾燥機「乾太くん」
・シンク廻りがスッキリ、プルオープンビルトイン食器洗い乾燥機
【周辺環境】
・深井西小学校まで徒歩2分(約140m)
・深井中央中学校まで徒歩18分(約1400m)
・ローソン堺神野町店まで徒歩11分(約880m)
・深井尼池公園まで徒歩2分(約140m)
月々の
支払例
支払例
万円
年
%
円
※紀陽銀行/借入金3,980万円、返済期間35年、金利0.395%(変動)の場合
※審査により金利は変わる可能性があります。
物件概要
- 交通
-
阪和線 上野芝駅 まで 徒歩20分
- 土地面積
- 公簿 91.68㎡ (27.73坪)
- 建物面積
- 93.15㎡ (28.17坪)
- 築年数
- 2026年 (令和8)
- 建ぺい率
- 60%
- 容積率
- 200%
- 土地権利
- 所有権
- 構造および階数
- 木造 地上2階建
- 小学校区
- 深井西 (140m)
- 中学校区
- 深井中央 (1400m)
- 私道負担
- 地目
- 宅地
- 現況
- 未完成
- 引渡時期
- 相談
- 駐車場
- 有 2台
- 上水道
- 公共
- 下水道
- 公共下水
- ガス
- 都市ガス
- 都市計画
- 市街化区域
- 用途地域
- 1種中高層
- 建築確認番号
- 第BVJ-ENG25-10-1408号
- 設備・条件
- IHクッキングヒーター、駐車場2台分
- 備考
- 準防火地域
- 取引態様
- 仲介



