中古一戸建て 泉南市中小路2丁目
所在地
泉南市中小路2丁目
1,890万円
31.68坪
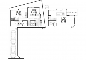
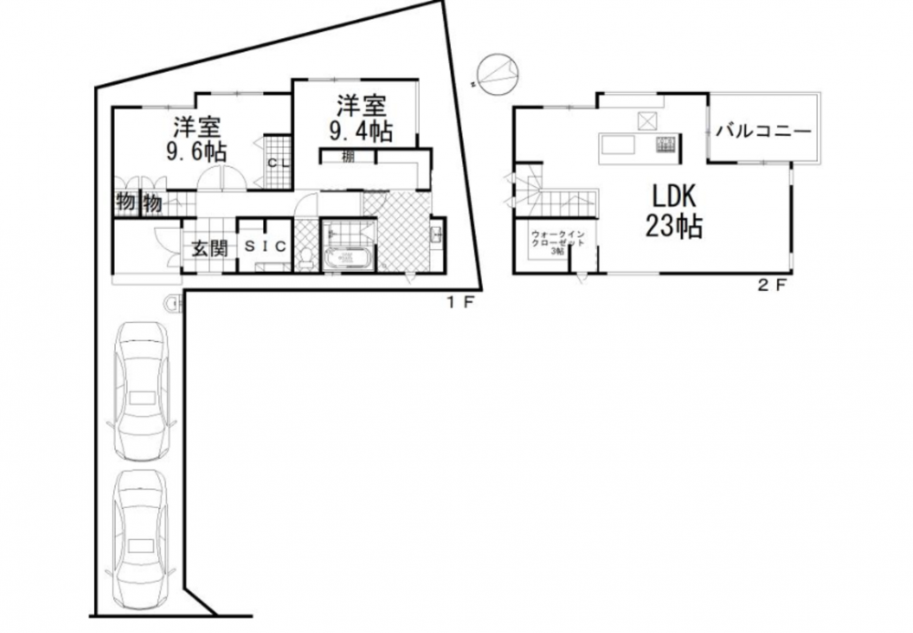
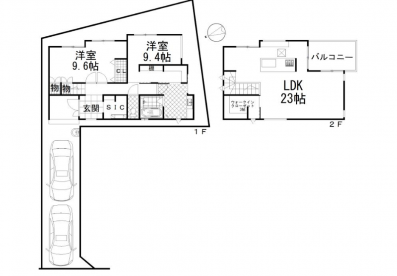
2LDK
・2019年4月築の築浅物件です☆
・リフォーム済!
・お車2台駐車可能!
・産直市場、ドラッグストアが近くお買物便利です♪
【リフォーム】クロス一部張替、洗面化粧台交換、ハウスクリーニング
月々の
支払例
支払例
万円
年
%
円
※紀陽銀行/借入金1,890万円、返済期間35年、金利0.395%(変動)の場合
※審査により金利は変わる可能性があります。
物件概要
- 交通
-
南海本線 岡田浦駅 まで 徒歩23分
阪和線 和泉砂川駅 まで 徒歩26分
- 土地面積
- 公簿 129.83㎡ (39.27坪)
- 建物面積
- 104.75㎡ (31.68坪)
- 築年数
-
2019年
(平成31)
4月
築7年 - 建ぺい率
- 60%
- 容積率
- 土地権利
- 所有権
- 構造および階数
- 小学校区
- 鳴滝 (1200m)
- 中学校区
- 泉南 (1400m)
- 私道負担
- 地目
- 宅地
- 現況
- 空家
- 引渡時期
- 即時
- 駐車場
- 有
- 上水道
- 公共
- 下水道
- ガス
- 都市ガス
- 都市計画
- 市街化区域
- 用途地域
- 準工業
- 設備・条件
- シャンプードレッサー、洗浄便座、ウォークインクローゼット、駐車場2台分、アイランドキッチン
- 備考
- 取引態様
- 仲介



