中古一戸建て 橋本市三石台2丁目
所在地
橋本市三石台2丁目
1,980万円
46.13坪
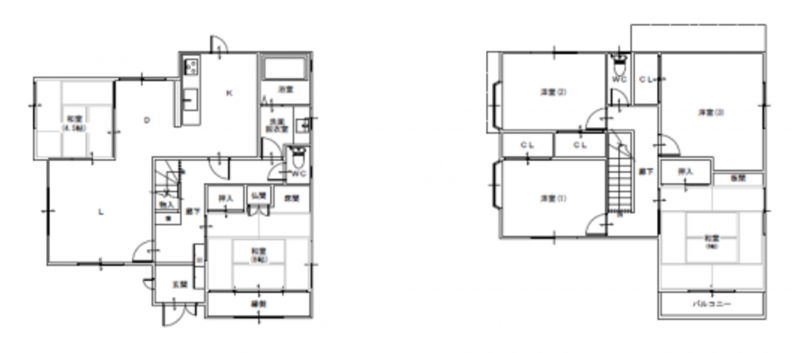
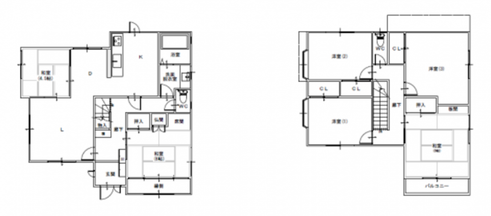
6LDK
☆南海高野線林間田園都市駅まで徒歩11分!
☆近隣に三石小学校があり、お子様の通学に安心♪
☆広々6LDK!
月々の
支払例
支払例
万円
年
%
円
※紀陽銀行/借入金1,980万円、返済期間35年、金利0.395%(変動)の場合
※審査により金利は変わる可能性があります。
物件概要
- 交通
-
南海高野線 林間田園都市駅 まで 徒歩11分
- 土地面積
- 公簿 204.20㎡ (61.77坪)
- 建物面積
- 152.52㎡ (46.13坪)
- 築年数
-
1989年
(平成元)
9月
築36年 - 建ぺい率
- 40%
- 容積率
- 80%
- 土地権利
- 所有権
- 構造および階数
- 軽量鉄骨造 地上2階建
- 小学校区
- 三石 (300m)
- 中学校区
- 紀見北 (1100m)
- 私道負担
- なし
- 地目
- 宅地
- 現況
- 空家
- 引渡時期
- 即時
- 駐車場
- 有
- 上水道
- 公共
- 下水道
- 公共下水
- ガス
- プロパンガス
- 都市計画
- 非線引区域
- 用途地域
- 1種低層
- 設備・条件
- トイレ2箇所
- 備考
- 取引態様
- 仲介



