中古一戸建て 阪南市箱作
所在地
阪南市箱作
395万円
26.76坪
4DK
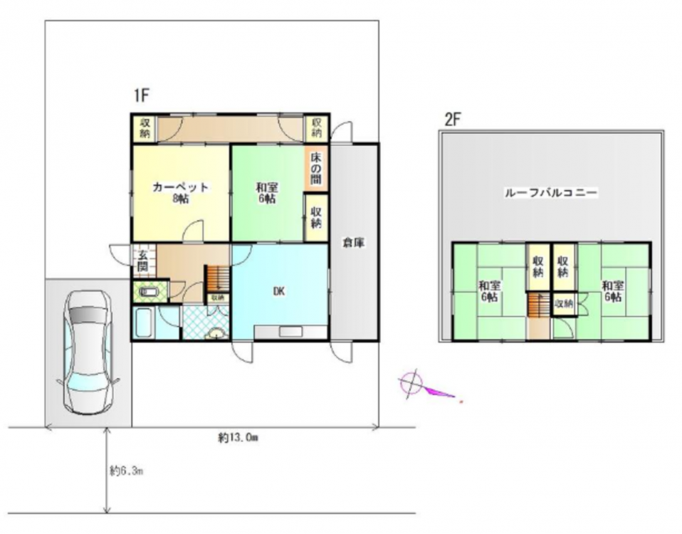
全居室6帖以上の4DK!
敷地面積約65坪
ルーフバルコニー付き♪
月々の
支払例
支払例
万円
年
%
円
※紀陽銀行/借入金395万円、返済期間35年、金利0.395%(変動)の場合
※審査により金利は変わる可能性があります。
物件概要
- 交通
-
南海本線 箱作駅 まで 徒歩12分
- 土地面積
- 215.78㎡ (65.27坪)
- 建物面積
- 88.47㎡ (26.76坪)
- 築年数
-
1974年
(昭和49)
7月
築51年 - 建ぺい率
- 50%
- 容積率
- 100%
- 土地権利
- 所有権
- 構造および階数
- 木造 地上2階建
- 小学校区
- 下荘 (1500m)
- 中学校区
- 貝掛 (1200m)
- 私道負担
- 地目
- 宅地
- 現況
- 空家
- 引渡時期
- 相談
- 駐車場
- 上水道
- 公共
- 下水道
- 浄化槽個別
- ガス
- 都市ガス
- 都市計画
- 市街化区域
- 用途地域
- 1種低層
- 設備・条件
- 側溝、ルーフバルコニー
- 備考
- 取引態様
- 仲介



