マンション ルイシャトレ鳳
所在地
堺市西区鳳南町5丁
3,590万円
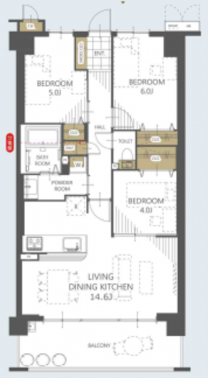
66.84m²
3LDK
阪和線「鳳」駅まで徒歩11分!
ペット飼育可(規約による制限有)
南西向きバルコニーにつき日当たり良好です!
月々の
支払例
支払例
万円
年
%
円
※紀陽銀行/借入金3,590万円、返済期間35年、金利0.395%(変動)の場合
※審査により金利は変わる可能性があります。
物件概要
- 交通
-
阪和線 鳳駅 まで 徒歩11分
阪和線 富木駅 まで 徒歩22分
阪和線 津久野駅 まで 徒歩27分
- 専有面積
- 壁芯 66.84㎡
- バルコニー
-
11.78㎡
(南西側)
- 所在階/階数
- 6階/11階
- 築年数
-
2007年
(平成19)
7月
築18年 - 建ぺい率
- 容積率
- 土地権利
- 所有権
- 構造および階数
- RC(鉄筋コンクリート) 造 地上11階建
- 総戸数
- 169戸
- 小学校区
- 鳳南 (550m)
- 中学校区
- 鳳 (1000m)
- 地目
- 現況
- 空家
- 引渡時期
- 即時
- 駐車場
- 有
- 駐車場月額
- 500〜4,000円/月
- 管理形態
- 全部委託
- 管理会社
- 株式会社長谷工コミュニティ
- 管理費
- 9,600円
- 修繕積立費
- 10,690円
- 上水道
- 下水道
- ガス
- 都市計画
- 用途地域
- 1種住居
- 設備・条件
- システムキッチン、カウンターキッチン、食器洗浄乾燥機、オートロック、ペット可、エレベーター
- 備考
- 取引態様
- 仲介



