中古一戸建て 南河内郡河南町大宝4丁目
所在地
南河内郡河南町大宝4丁目
2,490万円
47.27坪
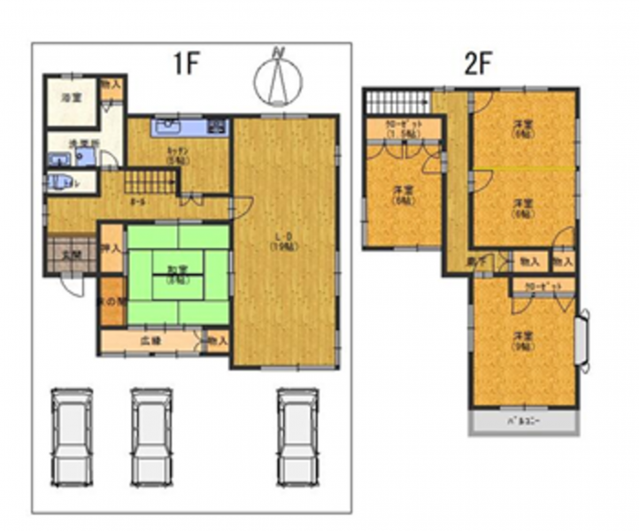
6K
全室2⾯採光☆
住友林業施工の家☆
シャッター付ガレージ3台駐⾞可♪
月々の
支払例
支払例
万円
年
%
円
※紀陽銀行/借入金2,490万円、返済期間35年、金利0.395%(変動)の場合
※審査により金利は変わる可能性があります。
物件概要
- 交通
-
近鉄長野線 喜志駅 バス15分乗車 バス停大宝4丁目 まで 徒歩5分
- 土地面積
- 公簿 264.84㎡ (80.11坪)
- 建物面積
- 156.28㎡ (47.27坪)
- 築年数
-
1981年
(昭和56)
1月
築45年 - 建ぺい率
- 50%
- 容積率
- 100%
- 土地権利
- 所有権
- 構造および階数
- 木造
- 小学校区
- 近つ飛鳥
- 中学校区
- 河南
- 私道負担
- なし
- 地目
- 宅地
- 現況
- 居住中
- 引渡時期
- 相談
- 駐車場
- 有
- 上水道
- 公共
- 下水道
- 公共下水
- ガス
- 都市ガス
- 都市計画
- 市街化区域
- 用途地域
- 1種低層
- 設備・条件
- システムキッチン、洗浄便座、追い焚き、モニタ付インターホン、駐車場3台分
- 備考
- 取引態様
- 仲介



