新築一戸建て 堺市中区堀上町
所在地
堺市中区堀上町
3,480万円
32.43坪
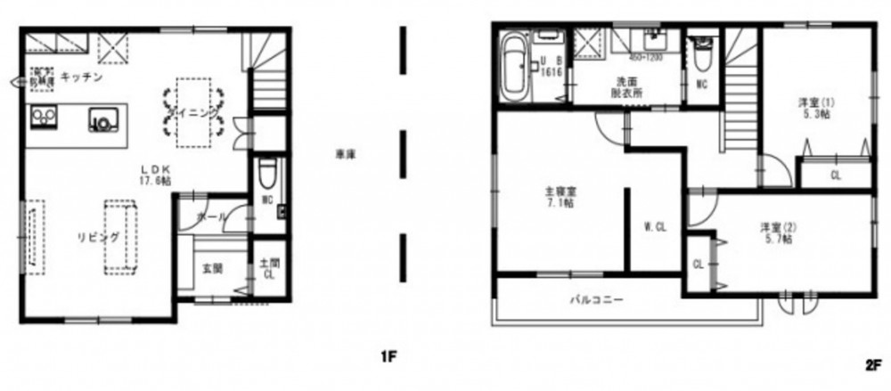
3LDK
★長期優良住宅 ZEH水準の省エネ住宅
★駐車2台可(車種による)
★ガスでパワフル乾燥!「乾太くん」標準装備
月々の
支払例
支払例
万円
年
%
円
※紀陽銀行/借入金3,480万円、返済期間35年、金利0.395%(変動)の場合
※審査により金利は変わる可能性があります。
物件概要
- 交通
-
南海泉北線 深井駅 まで 徒歩19分
- 土地面積
- 81.72㎡ (24.72坪)
- 建物面積
- 107.23㎡ (32.43坪)
- 築年数
- 2026年 (令和8)
- 建ぺい率
- 60%
- 容積率
- 200%
- 土地権利
- 所有権
- 構造および階数
- 木造 地上2階建
- 小学校区
- 八田荘 (800m)
- 中学校区
- 八田荘 (900m)
- 私道負担
- 地目
- 宅地
- 現況
- 未完成
- 引渡時期
- 相談
- 駐車場
- 上水道
- 公共
- 下水道
- 公共下水
- ガス
- 都市ガス
- 都市計画
- 市街化区域
- 用途地域
- 2種中高層
- 設備・条件
- システムキッチン、カウンターキッチン、ウォークインクローゼット、駐車場2台分、トイレ2箇所、乾太くん
- 備考
- 取引態様
- 仲介



