新築一戸建て 岸和田市岸城町7号地
所在地
岸和田市岸城町7号地
3,750万円
28.55坪
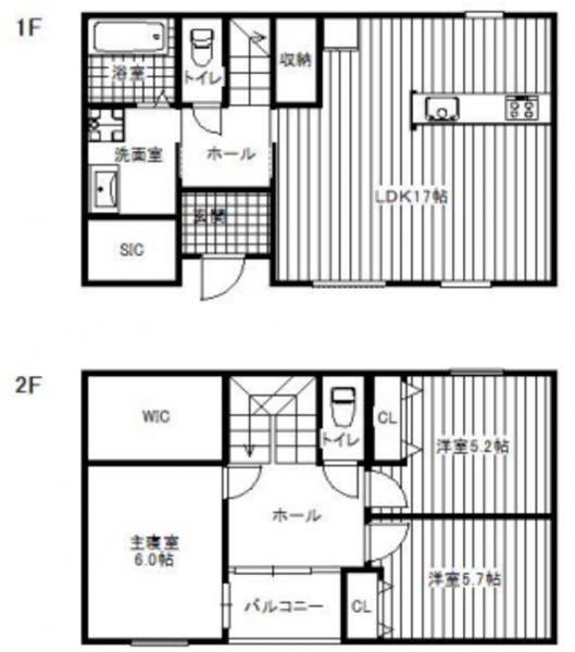
3LDK
2025年12月完成予定♪
南海本線「岸和田」駅まで徒歩8分!
ゆとりの3LDK♪
月々の
支払例
支払例
万円
年
%
円
※紀陽銀行/借入金3,750万円、返済期間35年、金利0.395%(変動)の場合
※審査により金利は変わる可能性があります。
物件概要
- 交通
-
南海本線 岸和田駅 まで 徒歩8分
- 土地面積
- 実測 108.71㎡ (32.88坪)
- 建物面積
- 94.39㎡ (28.55坪)
- 築年数
- 2025年 (令和7) 12月
- 建ぺい率
- 60%
- 容積率
- 200%
- 土地権利
- 所有権
- 構造および階数
- 木造 地上2階建
- 小学校区
- 城内
- 中学校区
- 岸城
- 私道負担
- なし
- 地目
- 宅地
- 現況
- 未完成
- 引渡時期
- 予定 令和 7年12月 下旬
- 駐車場
- 有
- 上水道
- 下水道
- ガス
- 都市計画
- 市街化区域
- 用途地域
- 1種中高層
- 設備・条件
- システムキッチン、カウンターキッチン、食器洗浄乾燥機、IHクッキングヒーター、ウォークインクローゼット、トイレ2箇所
- 備考
- 準防火地域
- 取引態様
- 仲介



