収益物件/アパート 堺市北区長曽根町
所在地
堺市北区長曽根町
13,000万円
2沿線利用可能で便利♪
近隣お買い物施設充実で便利☆
オーナーチェンジ物件です☆
月々の
支払例
支払例
万円
年
%
円
※紀陽銀行/借入金13,000万円、返済期間35年、金利0.395%(変動)の場合
※審査により金利は変わる可能性があります。
物件概要
- 交通
-
御堂筋線 なかもず駅 まで 徒歩8分
南海電鉄高野線 中百舌鳥駅 まで 徒歩10分
- 土地面積
- 公簿 339.65㎡ (102.74坪)
- 建物面積
- 220.67㎡ (66.75坪)
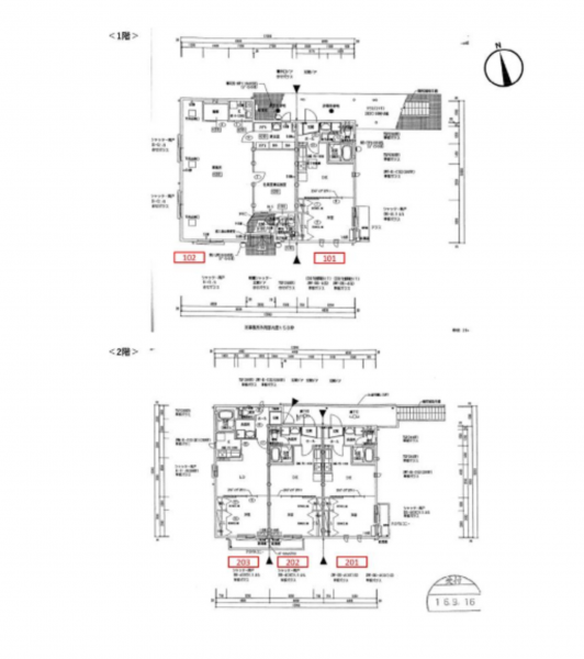
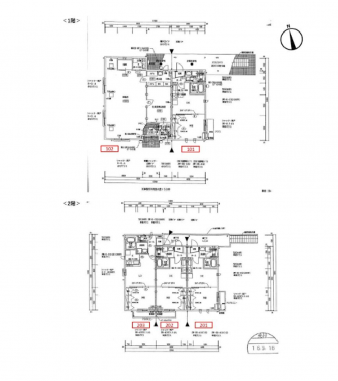
- 所在階/階数
- 築年数
-
2005年
(平成17)
2月
築20年 - 建ぺい率
- 60%
- 容積率
- 200%
- 土地権利
- 所有権
- 構造および階数
- 軽量鉄骨造 地上2階建
- 総戸数
- 小学校区
- 新金岡 (1300m)
- 中学校区
- 金岡北 (1300m)
- 私道負担
- 地目
- 宅地
- 現況
- 賃貸中
- 引渡時期
- 相談
- 駐車場
- 有
- 上水道
- 公共
- 下水道
- 公共下水
- ガス
- 都市ガス
- 都市計画
- 市街化区域
- 用途地域
- 2種中高層
- 設備・条件
- 備考
-
◆契約条件:現状有姿・契約不適合責任免責・賃借人付売買◆年収:【現状】4,677,600円 【満室想定】5,565,600円◆現在空室の1室は賃貸募集中です。家賃:69,000円、共益費:5,000円
- 取引態様
- 仲介



