新築一戸建て 堺市東区高松1号棟
所在地
堺市東区高松1号棟
3,780万円
26.95坪
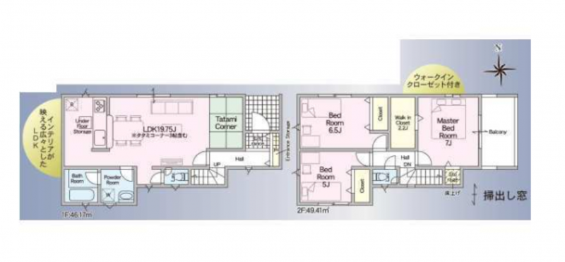
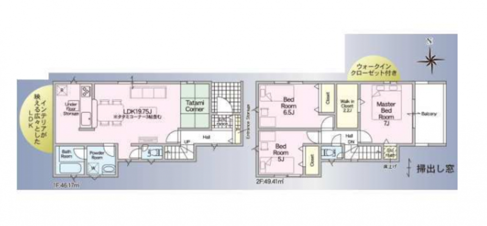
3LDK
南海高野線『荻原天神』駅まで徒歩12分♪
各居室に収納スペース有り☆
畳コーナー有り☆
月々の
支払例
支払例
万円
年
%
円
※紀陽銀行/借入金3,780万円、返済期間35年、金利0.395%(変動)の場合
※審査により金利は変わる可能性があります。
物件概要
- 交通
-
南海電鉄高野線 萩原天神駅 まで 徒歩12分
- 土地面積
- 実測 124.43㎡ (37.64坪)
- 建物面積
- 89.10㎡ (26.95坪)
- 築年数
- 2025年 (令和7) 11月 完成予定
- 建ぺい率
- 70%
- 容積率
- 174%
- 土地権利
- 所有権
- 構造および階数
- 木造 地上2階建
- 小学校区
- 登美丘東 (939m)
- 中学校区
- 登美丘 (698m)
- 私道負担
- 地目
- 宅地
- 現況
- 空家
- 引渡時期
- 即時
- 駐車場
- 有
- 上水道
- 公共
- 下水道
- 公共下水
- ガス
- 都市ガス
- 都市計画
- 市街化区域
- 用途地域
- 1種中高層
- 建築確認番号
- 第R07SHC113392号
- 設備・条件
- システムキッチン、シャンプードレッサー、洗浄便座、浴室乾燥機、複層ガラス、ルーフバルコニー、ウォークインクローゼット、モニタ付インターホン、駐車場2台分、床下収納、トイレ2箇所
- 備考
- 取引態様
- 仲介



