中古一戸建て 岩出市吉田
所在地
岩出市吉田
320万円
16.36坪
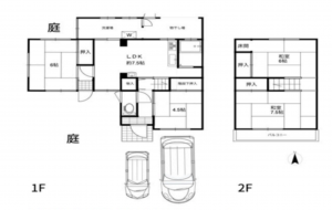
4LDK
☆RC造4LDK
☆お車2台駐車可能
月々の
支払例
支払例
万円
年
%
円
※紀陽銀行/借入金320万円、返済期間35年、金利0.395%(変動)の場合
※審査により金利は変わる可能性があります。
物件概要
- 交通
-
阪和線 紀伊駅 まで 徒歩48分
- 土地面積
- 公簿 158.97㎡ (48.08坪)
- 建物面積
- 54.10㎡ (16.36坪)
- 築年数
-
1975年
(昭和50)
3月
築51年 - 建ぺい率
- 70%
- 容積率
- 200%
- 土地権利
- 所有権
- 構造および階数
- RC(鉄筋コンクリート) 造 地上2階建
- 小学校区
- 山崎 (1400m)
- 中学校区
- 岩出 (4200m)
- 私道負担
- 地目
- 宅地
- 現況
- 空家
- 引渡時期
- 即時
- 駐車場
- 有
- 上水道
- 公共
- 下水道
- 公共下水
- ガス
- プロパンガス
- 都市計画
- 非線引区域
- 用途地域
- 指定無
- 設備・条件
- 駐車場2台分
- 備考
- 取引態様
- 仲介



