新築一戸建て 堺市西区家原寺町2丁
所在地
堺市西区家原寺町2丁
3,998万円
29.93坪
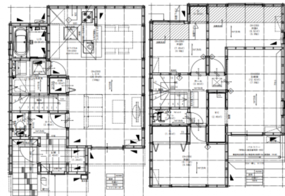
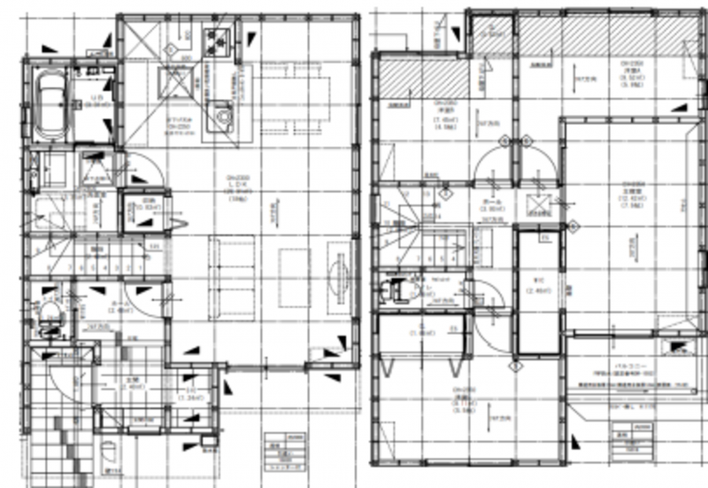
4LDK
小中学校まで徒歩15分圏内でお子様の通学も安心です♪
使い勝手のいい4LDK!
前面道路約6m♪
月々の
支払例
支払例
万円
年
%
円
※紀陽銀行/借入金3,998万円、返済期間35年、金利0.395%(変動)の場合
※審査により金利は変わる可能性があります。
物件概要
- 交通
-
阪和線 津久野駅 まで 徒歩19分
- 土地面積
- 実測 110.03㎡ (33.28坪)
- 建物面積
- 98.95㎡ (29.93坪)
- 築年数
- 2025年 (令和7) 2月
- 建ぺい率
- 50%
- 容積率
- 100%
- 土地権利
- 所有権
- 構造および階数
- 木造 地上2階建
- 小学校区
- 家原寺 (600m)
- 中学校区
- 津久野 (1000m)
- 私道負担
- 地目
- 宅地
- 現況
- 未完成
- 引渡時期
- 相談
- 駐車場
- 上水道
- 下水道
- ガス
- 都市計画
- 市街化区域
- 用途地域
- 1種低層
- 建築確認番号
- 第 KS125-0420-55798 号
- 設備・条件
- システムキッチン、カウンターキッチン、食器洗浄乾燥機、ウォークインクローゼット、駐車場2台分、トイレ2箇所
- 備考
-
景観法・宅地造成等規制法・都市再生特別措置法
- 取引態様
- 仲介



