マンション ディークラディア三国ヶ丘
所在地
堺市北区百舌鳥赤畑町2丁
3,280万円
64.75m²
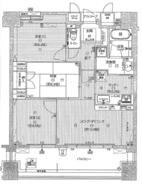
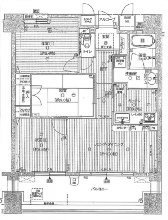
3LDK
☆三国ヶ丘駅まで徒歩約7分で通勤・通学に便利♪
☆コンビニ・スーパー近く、お買い物便利な立地です♪
☆ペット飼育可!(規約による制限あり)
月々の
支払例
支払例
万円
年
%
円
※紀陽銀行/借入金3,280万円、返済期間35年、金利0.395%(変動)の場合
※審査により金利は変わる可能性があります。
物件概要
- 交通
-
南海電鉄高野線 三国ヶ丘駅 まで 徒歩7分
阪和線 三国ヶ丘駅 まで 徒歩7分
- 専有面積
- 壁芯 64.75㎡
- バルコニー
-
15.80㎡
(南側)
- 所在階/階数
- 8階/10階
- 築年数
-
2007年
(平成19)
3月
築19年 - 建ぺい率
- 容積率
- 土地権利
- 所有権
- 構造および階数
- RC(鉄筋コンクリート) 造 地上10階建
- 総戸数
- 小学校区
- 百舌鳥 (1200m)
- 中学校区
- 陵南 (1400m)
- 地目
- 現況
- 空家
- 引渡時期
- 相談
- 駐車場
- 空有
- 駐車場月額
- 4,500〜12,000円/月
- 管理形態
- 全部委託
- 管理会社
- 管理費
- 8,550円
- 修繕積立費
- 13,280円
- 上水道
- 公共
- 下水道
- 公共下水
- ガス
- 都市ガス
- 都市計画
- 用途地域
- 近隣商業
- 設備・条件
- ペット可、エレベーター
- 備考
-
自治会費有 年額2400円
- 取引態様
- 仲介



