マンション サンライズマンション岩出8
所在地
岩出市金池
550万円
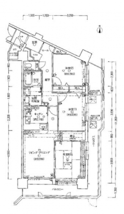
75.04m²
3LDK
☆14階建て6階部分につき眺望良好です!
☆山崎北小学校・岩出中学校区!
☆閑静な住宅街!
月々の
支払例
支払例
万円
年
%
円
※紀陽銀行/借入金550万円、返済期間35年、金利0.395%(変動)の場合
※審査により金利は変わる可能性があります。
物件概要
- 交通
-
阪和線 紀伊駅 まで 徒歩62分
- 専有面積
- 75.04㎡
- バルコニー
-
26.83㎡
(南東側)
- 所在階/階数
- 6階/14階
- 築年数
-
1995年
(平成7)
10月
築30年 - 建ぺい率
- 容積率
- 土地権利
- 所有権
- 構造および階数
- SRC(鉄骨鉄筋コンクリート) 造 地上14階建
- 総戸数
- 小学校区
- 山崎北 (850m)
- 中学校区
- 岩出 (2400m)
- 地目
- 現況
- 居住中
- 引渡時期
- 相談
- 駐車場
- 空有
- 駐車場月額
- 5,520円/月
- 管理形態
- 全部委託
- 管理会社
- グローバルコミュニティ株式会社
- 管理費
- 10,800円
- 修繕積立費
- 12,390円
- 上水道
- 下水道
- ガス
- 都市ガス
- 都市計画
- 用途地域
- 指定無
- 設備・条件
- エレベーター
- 備考
- 取引態様
- 仲介



