新築一戸建て 富田林市北大伴町2丁目5号棟
所在地
富田林市北大伴町2丁目5号棟
2,580万円
29.64坪
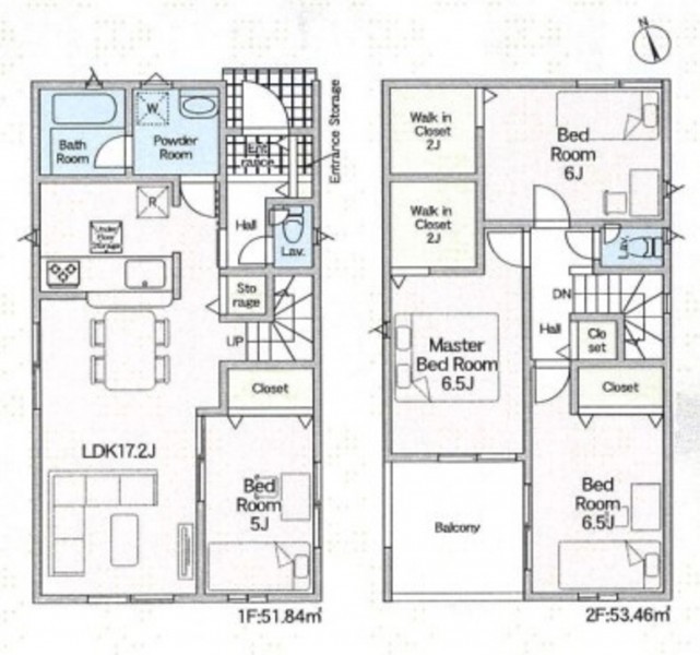
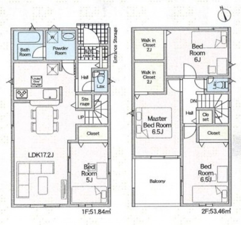
4LDK
☆4LDK!
☆土地面積約42坪!
☆全居室収納有!
☆モニター付きインターホン!
月々の
支払例
支払例
万円
年
%
円
※紀陽銀行/借入金2,580万円、返済期間35年、金利0.395%(変動)の場合
※審査により金利は変わる可能性があります。
物件概要
- 交通
-
近鉄長野線 富田林駅 まで 徒歩25分
- 土地面積
- 公簿 141.02㎡ (42.65坪)
- 建物面積
- 98.01㎡ (29.64坪)
- 築年数
- 2025年 (令和7) 11月
- 建ぺい率
- 60%
- 容積率
- 196%
- 土地権利
- 所有権
- 構造および階数
- 木造 地上2階建
- 小学校区
- 大伴 (776m)
- 中学校区
- 第三 (2999m)
- 私道負担
- 地目
- 宅地
- 現況
- 空家
- 引渡時期
- 即時
- 駐車場
- 有
- 上水道
- 公共
- 下水道
- 公共下水
- ガス
- 都市ガス
- 都市計画
- 市街化区域
- 用途地域
- 2種中高層
- 建築確認番号
- 第R07SHC111538号
- 設備・条件
- システムキッチン、カウンターキッチン、洗浄便座、浴室乾燥機、複層ガラス、ルーフバルコニー、ウォークインクローゼット、モニタ付インターホン、床下収納、トイレ2箇所
- 備考
- 取引態様
- 仲介



