マンション サンライズマンション岩出10
所在地
岩出市西国分
580万円
81.19m²
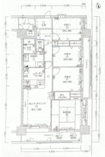
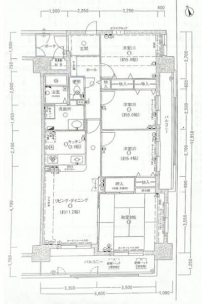
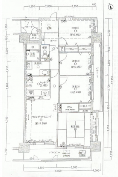
3LDK
☆JR和歌山線下井阪駅より徒歩20分
☆上岩出小学校・岩出第二中学校区!
月々の
支払例
支払例
万円
年
%
円
※紀陽銀行/借入金580万円、返済期間35年、金利0.395%(変動)の場合
※審査により金利は変わる可能性があります。
物件概要
- 交通
-
JR和歌山線
- 専有面積
- 内法 81.19㎡
- バルコニー
-
15.20㎡
(南東側)
- 所在階/階数
- 9階/13階
- 築年数
-
1997年
(平成9)
12月
築28年 - 建ぺい率
- 容積率
- 土地権利
- 所有権
- 構造および階数
- SRC(鉄骨鉄筋コンクリート) 造 地上13階建
- 総戸数
- 121戸
- 小学校区
- 上岩出 (1100m)
- 中学校区
- 岩出第二 (2000m)
- 地目
- 現況
- 空家
- 引渡時期
- 即時
- 駐車場
- 空有
- 駐車場月額
- 4,850円/月
- 管理形態
- 全部委託
- 管理会社
- 管理費
- 12,000円
- 修繕積立費
- 14,400円
- 上水道
- 下水道
- ガス
- プロパンガス
- 都市計画
- 用途地域
- 指定無
- 設備・条件
- システムキッチン、シャンプードレッサー、洗浄便座、角部屋
- 備考
- 取引態様
- 仲介



