中古一戸建て 堺市北区東雲東町2丁
所在地
堺市北区東雲東町2丁
1,150万円
16.49坪
4DK
☆阪和線「堺市」駅まで徒歩5分!
☆忙しい朝や遅い帰宅時に嬉しい「駅近」!
☆長尾中学校まで徒歩7分!お子様の通学に安心♪
☆買い物施設・医療施設が近く、生活に便利!
月々の
支払例
支払例
万円
年
%
円
※紀陽銀行/借入金1,150万円、返済期間35年、金利0.395%(変動)の場合
※審査により金利は変わる可能性があります。
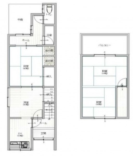
物件概要
- 交通
-
阪和線 堺市駅 まで 徒歩5分
- 土地面積
- 公簿 50.87㎡ (15.38坪)
- 建物面積
- 54.54㎡ (16.49坪)
- 築年数
-
1935年
(昭和10)
1月
築91年 - 建ぺい率
- 60%
- 容積率
- 200%
- 土地権利
- 所有権
- 構造および階数
- 木造 地上2階建
- 小学校区
- 東三国丘 (1105m)
- 中学校区
- 長尾 (558m)
- 私道負担
- あり (9.03㎡)
- 地目
- 宅地
- 現況
- 空家
- 引渡時期
- 相談
- 駐車場
- 無
- 上水道
- 公共
- 下水道
- 公共下水
- ガス
- 都市ガス
- 都市計画
- 市街化区域
- 用途地域
- 1種低層
- 設備・条件
- 備考
-
謄本面積59.90㎡
契約不適合責任免責42条1項3号道路(再建築可)
再建築の際は切離し同意必要(掘削同意必要の可能性有)
相続登記未了の為、引渡しまでに相続登記完了する。
建築年月日:不明 - 取引態様
- 仲介



