中古一戸建て 岸和田市西大路町
所在地
岸和田市西大路町
1,800万円
30.55坪
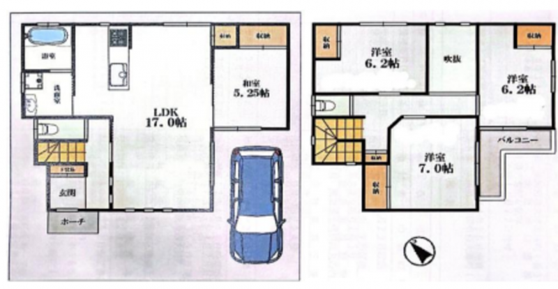
4LDK
閑静な住宅街に位置しています♪
吹抜けで開放感のあるLDK!全居室収納付き!
コンビニ・スーパーが近く買い物に便利な立地です♪
月々の
支払例
支払例
万円
年
%
円
※紀陽銀行/借入金1,800万円、返済期間35年、金利0.395%(変動)の場合
※審査により金利は変わる可能性があります。
物件概要
- 交通
-
阪和線 久米田駅 まで 徒歩17分
- 土地面積
- 公簿 100.03㎡ (30.25坪)
- 建物面積
- 101.01㎡ (30.55坪)
- 築年数
-
2005年
(平成17)
5月
築20年 - 建ぺい率
- 60%
- 容積率
- 200%
- 土地権利
- 所有権
- 構造および階数
- 木造 地上2階建
- 小学校区
- 八木
- 中学校区
- 久米田
- 私道負担
- 地目
- 宅地
- 現況
- 空家
- 引渡時期
- 即時
- 駐車場
- 有 1台
- 上水道
- 公共
- 下水道
- 公共下水
- ガス
- 都市ガス
- 都市計画
- 市街化区域
- 用途地域
- 準工業
- 設備・条件
- システムキッチン、トイレ2箇所
- 備考
- 取引態様
- 仲介



