中古一戸建て 堺市中区八田北町
所在地
堺市中区八田北町
1,590万円
25.97坪
4LDK
☆2007年建築
☆南向き!
☆駐車場スペース
☆小中学校近く、お子様の通学も安心です
月々の
支払例
支払例
万円
年
%
円
※紀陽銀行/借入金1,590万円、返済期間35年、金利0.395%(変動)の場合
※審査により金利は変わる可能性があります。
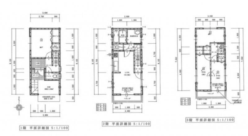
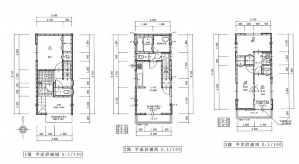
物件概要
- 交通
-
南海泉北線 深井駅 まで 徒歩20分
- 土地面積
- 51.92㎡ (15.70坪)
- 建物面積
- 85.86㎡ (25.97坪)
- 築年数
-
2007年
(平成19)
1月
築19年 - 建ぺい率
- 60%
- 容積率
- 200%
- 土地権利
- 所有権
- 構造および階数
- 木造 地上3階建
- 小学校区
- 八田荘 (240m)
- 中学校区
- 八田荘 (120m)
- 私道負担
- 地目
- 宅地
- 現況
- 空家
- 引渡時期
- 即時
- 駐車場
- 有
- 上水道
- 公共
- 下水道
- 公共下水
- ガス
- 都市ガス
- 都市計画
- 市街化区域
- 用途地域
- 1種中高層
- 設備・条件
- 側溝、システムキッチン、トイレ2箇所
- 備考
- リフォーム渡しの場合1980万円になります
- 取引態様
- 仲介



