中古一戸建て 堺市西区浜寺諏訪森町西1丁
・南海本線「諏訪ノ森」駅まで徒歩9分
・北西側4.5m、南東側約4.7mの両面道路
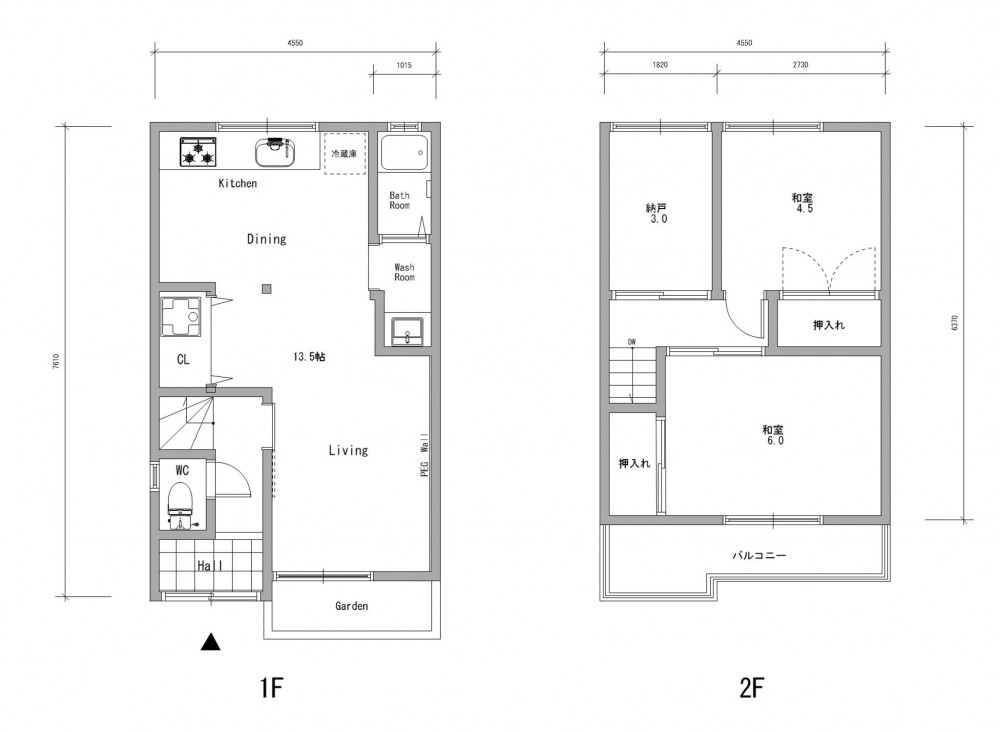
LDK約13.5帖ございます!
2SLDKの間取りです!
S(納戸)はお部屋として使用可能です!
【改装内容】
□クロス張替え(LDK、トイレ、洗面室、玄関、廊下)
■フロアタイル張替え(LDK、トイレ、洗面室、玄関、廊下)
□洗濯機置場新設(LDK部分)
■フローリング張替え(廊下)
□洗面化粧台新調
■LD扉新調
□雨戸塗装
■バルコニー防水工事
□ハウスクリーニングetc...
【ライフインフォメーション】
■KOHYO諏訪ノ森店 約600m
□浜寺諏訪ノ森公園 約120m
■セブンイレブン浜寺諏訪森町店 約650m
□ウエルシア堺諏訪ノ森店 約550m
■浜寺小学校 約900m
□浜寺南中学校 約2500m
支払例
※紀陽銀行/借入金780万円、返済期間35年、金利0.395%(変動)の場合
※審査により金利は変わる可能性があります。
物件概要
- 交通
-
南海本線 諏訪ノ森駅 まで 徒歩9分
- 土地面積
- 公簿 46.97㎡ (14.20坪)
- 建物面積
- 62.60㎡ (18.93坪)
- 築年数
-
1975年
(昭和50)
11月
築50年 - 建ぺい率
- 60%
- 容積率
- 200%
- 土地権利
- 所有権
- 構造および階数
- 木造 地上2階建
- 小学校区
- 浜寺
- 中学校区
- 浜寺南
- 私道負担
- なし
- 地目
- 宅地
- 現況
- 空家
- 引渡時期
- 相談
- 駐車場
- 上水道
- 公共
- 下水道
- 公共下水
- ガス
- 都市ガス
- 都市計画
- 市街化区域
- 用途地域
- 1種住居
- 設備・条件
- 備考
- 取引態様
- 仲介



